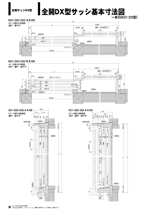
全開サッシ

一本引 KZ1-A (戸袋の中に全て収まる)

すべてをしまって、すっきりと開く。
引戸が戸袋の中にすべて収まるフルオープンタイプです。
開け放てば、視線も風も空間もひとつにつながる。
まるで壁が消えたような開放感が、日常の中に特別な広がりをもたらします。
閉めたときには木の質感がやさしく包み込み、静けさとぬくもりを演出。
外と内を自由に行き来できる、心地よい暮らしのためのサッシです。