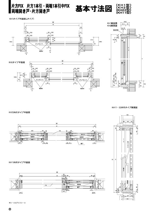
片方FIX

KH-1

開閉しないFIX窓と、左右に動く一本の引戸を組み合わせた高機能な複合窓です。
FIX窓が外の景色と光を安定して取り込みながら高い気密性を保ち、引戸部分で風を取り込み、自在に換気を行うことができます。
木のぬくもりを活かしつつ、開口部を最大限に確保できるため、採光・換気・断熱性をバランス良く両立します。住まいの快適さと美しさを両立する、洗練された窓です。